Проект №18 Дом с террасой 7,5х6

брус камерной сушки
Создайте свой план для этого проекта
и отправьте его нам на расчет в один клик.
Под ключ (с отделкой) 6х7,5 Профилированный 140х140 мм 1592100 Заказать
Под ключ (с отделкой) 6х7,5 Профилированный 190х140 мм 1742100 Заказать
Под усадку (без отделки) 6х7,5 Cруб дома 140х140 мм 1072100 Заказать
Под усадку (без отделки) 6х7,5 Cруб дома 190х140 мм 1202100 Заказать


Комплектация

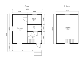
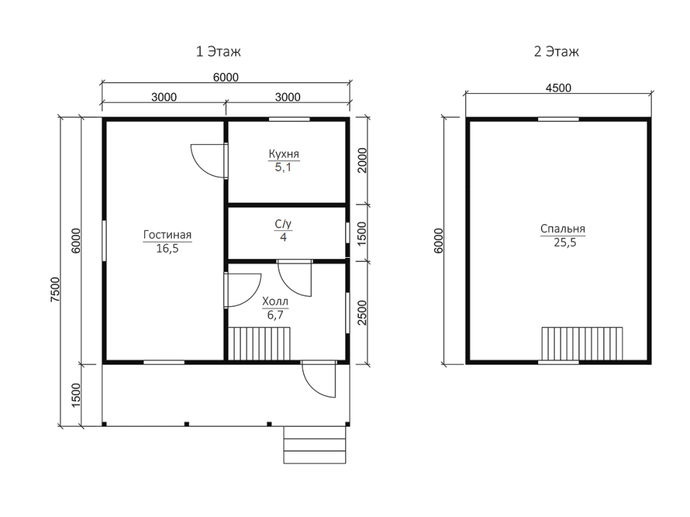
Площадь застройки: 45 м2
Длина: 7.5 м
Ширина: 6 м
Общая площадь: 58.82 м2
Под ключ (с отделкой) Под усадку (без отделки)
Фундамент Свайно-винтовой или ж/б сваи (рассчитываются отдельно).
Гидроизоляция фундамента Рубероид в два слоя.
Основание (обвязка) Из обрезного бруса (100х150 мм. 150х150 мм. 150х200 мм. согласно выбранному сечению бруса). Обработка антисептиком.
Количество рядов основания 2 2
Цокольное перекрытие Обрезной брус камерной сушки 100х150/50х200 мм. с шагом 600 мм. Обработка антисептиком. Обрезной брус естественной влажности 100х150/50х200 мм. с шагом 600 мм. Обработка антисептиком.
Пол черновой Обрезная доска камерной сушки 20х100 мм. Обрезная доска естественной влажности 20х100 мм.
Внешние стены Профилированный брус камерной сушки, сечением 90х140/140х140/190х140 мм. по выбранной комплектации. Два вида профиля: 
1. С двух сторон, прямой со снятой фаской. 2. Снаружи под «блок- хаус», внутри прямой.
Высота сруба: Сруб одноэтажный- 18 венцов
Сруб с мансардой- 18 венцов
Сруб в 1,5 этажа- 18 венцов, далее каркас с внешней отделкой имитацией бруса.
Сруб в 2 этажа- 37 венцов
Профилированный брус естественной влажности, сечением 90х140/140х140/190х140 мм. по выбранной комплектации. Два вида профиля: 
1. С двух сторон, прямой со снятой фаской. 2. Снаружи под «блок- хаус», внутри прямой.
Высота сруба: Сруб одноэтажный- 18 венцов
Сруб с мансардой- 18 венцов
Сруб в 1,5 этажа- 18 венцов, далее каркас с внешней отделкой имитацией бруса.
Сруб в 2 этажа- 37 венцов
Межвенцовый утеплитель Джут (льноджутовое полотно). Джут (льноджутовое полотно).
Перегородки 1-го этажа Профилированный брус камерной сушки, сечением 90х140 мм. Профилированный брус естественной влажности, сечением 90х140 мм.
Перегородки 2-го этажа Каркасные: доска камерной сушки 40х100 мм, обшитые евровагонкой хвойных пород, камерной сушки, толщиной 12,5 мм. сорт «АВ» (дома с мансардой и в 1,5 этажа). Брусовые: профилированный брус камерной сушки, сечением 90х140 мм. (дома двухэтажные). Каркасные: доска естественной влажности 40х100 мм. (дома с мансардой и в 1,5 этажа). Брусовые: профилированный брус естественной влажности, сечением 90х140 мм. (дома двухэтажные).
Сборка сруба Берёзовый нагель. Берёзовый нагель.
Соединение углов сруба «Тёплый угол» (коренной шип). «Тёплый угол» (коренной шип).
Высота от пола до потолка Сруб одноэтажный: 2,4 м. (18 венцов) Сруб с мансардой: 1-ый этаж- 2,4 м. (18 венцов)
2-ой этаж (мансарда)- 2,3 м.
Сруб в полтора и два этажа:
1-ый этаж 2,4 м ±4 см. (18 венцов)
2-ой этаж 2,4 м ±4 см. каркасные аттиковые стены (боковые) высотой 1,5 м. в полутораэтажном доме
2,4 м ±4 см (поднят брусом на 18 венцов) в двухэтажном доме.
Сруб одноэтажный: 2,5 м. (18 венцов) Сруб с мансардой: 1-ый этаж- 2,5 м. (18 венцов)
2-ой этаж (мансарда)- 2,4 м.
Сруб в полтора и два этажа:
1-ый этаж 2,5 м ±4 см. (18 венцов)
2-ой этаж 2,5 м ±4 см. каркасные аттиковые стены (боковые) высотой 1,5 м. в полутораэтажном доме
2,5 м ±4 см (поднят брусом на 18 венцов) в двухэтажном доме.
Утепление (пол, потолок, мансарда) Минеральная вата Knauf 150 мм. Отсутствует.
Пароизоляция (пол, потолок, мансарда) Ондутис R70. Отсутствует.
Пол чистовой Шпунтованная доска камерной сушки толщиной 36 мм. сорт АВ. по рейке 20х40 мм. либо шпунтованная ДСП 16 мм. по разряженной обрешётке из обрезной доски камерной сушки 20х100 мм. Отсутствует.
Потолки Евровагонка камерной сушки толщиной 12,5 мм. сорт АВ. Отсутствует.
Окна Деревянные, двойного остекления. Отсутствуют.
Двери Входная- металлическая, утеплённая (Россия). Межкомнатные- филёнчатые. Отсутствуют.
Наличники на окна и двери Наличник деревянный, строганый, камерной сушки 70-90 мм. Отсутствует.
Шиповка оконных и дверных проёмов (ройки) Да. Отсутствует.
Лестница (при наличии второго этажа) Деревянная, одно или двухмаршевая. Перила- заводские резные, балясины- заводские точеные, устанавливаются стартовые точёные столбы. Ступени 40х200 мм. Тетива лестницы- 90х140 мм. Отсутствует.
Крыша Двускатная, ломаная или вальмовая в соответствии с проектом. Двускатная, ломаная или вальмовая в соответствии с проектом.
Стропильная система Выполнена из обрезной доски камерной сушки 40х150 мм. Шаг установки стропильных ног 600 мм. Выполнена из обрезной доски естественной влажности 40х150 мм. Шаг установки стропильных ног 600 мм.
Обрешётка Выполняется из обрезной доски камерной сушки толщиной 20-22 мм. Шаг крепления обрешетки 300 мм. Контробрешётка выполняется из бруска камерной сушки 40х50 мм. Крепится по стропильным ногам (вентиляционный зазор). Выполняется из обрезной доски естественной влажности толщиной 20-22 мм. Шаг крепления обрешетки 300 мм. Контробрешётка выполняется из бруска естественной влажности 40х50 мм. Крепится по стропильным ногам (вентиляционный зазор).
Подкровельная мембрана Ондутис А100 Ондутис А100
Кровельное покрытие (на выбор) Ондулин, Черепица Ондулин. Ондулин, Черепица Ондулин.
Фронтоны (при наличии) Каркас из обрезной доски камерной сушки 40х150 мм. Обшиваются вагонкой камерной сушки толщиной 16 мм. сорт АВ по контррейке 20х40 мм. (вентиляционный зазор). Влаго-ветрозащита Ондутис А100. Монтаж вентиляционных решёток. Каркас из обрезной доски естественной влажности 40х150 мм. Обшиваются вагонкой камерной сушки толщиной 16 мм. сорт АВ по контррейке 20х40 мм. (вентиляционный зазор). Влаго-ветрозащита Ондутис А100. Монтаж вентиляционных решёток.
Свесы крыши Ширина 400 мм. Подшиваются вагонкой камерной сушки, сорт АВ. Ширина 400 мм. Подшиваются вагонкой камерной сушки, сорт АВ.
Терраса/балкон (при наличии) Устанавливаются опорные столбы из строганного бруса камерной сушки 140х140 мм. с компенсационными болтами под усадку. Устанавливаются опорные столбы из строганного бруса естественной влажности 140х140 мм. с компенсационными болтами под усадку.
Отделка потолка террасы/балкона Евровагонка камерной сушки толщиной 12,5 мм. сорт АВ. Отсутствует.
Пол террасы/балкона Шпунтованная доска камерной сушки толщиной 36 мм. сорт АВ. Отсутствует.
Ограждение террасы/балкона Перила- строганая доска. Балясины- точеные, фигурные. Либо ограждение в скандинавском стиле. Устанавливаются ступени у входа. Отсутствует.
Допуск на геометрические параметры сруба Составляет +/- 50 мм по длине с каждой стороны. Составляет +/- 50 мм по длине с каждой стороны.
Допускается стыковка бруса, вагонки и половой доски По всему периметру стен дома (если ширина и длина дома более 6,0 метров). Вагонки и доски пола в каждой отдельной комнате. По всему периметру стен дома (если ширина и длина дома более 6,0 метров).
Допуски по брусу, доске +/- 5 мм. +/- 5 мм.
В стоимость включена Доставка комплекта материала в радиусе 500 км. от г. Пестова Новгородской области и сборка дома на вашем участке. Доставка комплекта материала в радиусе 500 км. от г. Пестова Новгородской области и сборка дома на вашем участке.
Гарантия 5 лет. 2 года.
Бытовка строительная 2,0х3,0 м. каркасно-щитовая. Стоимость 23000 руб. Остаётся на участке Заказчика. Стоимость 23000 руб. Остаётся на участке Заказчика.
Туалет 1,0х1,0 м. каркасно-щитовой. Стоимость 12000 руб. Остаётся на участке Заказчика. Стоимость 12000 руб. Остаётся на участке Заказчика.
Генератор Стоимость аренды на весь срок строительства 10000 руб. ГСМ за счёт Заказчика. Стоимость аренды на весь срок строительства 10000 руб. ГСМ за счёт Заказчика.

Сооружение домов может выполняться в двух вариантах: сразу под ключ и под усадку, когда дом отстаивается в течение некоторого времени.

В период холодов рекомендуется строить из зимнего леса, в летний сезон - из сухого бруса (дерева камерной сушки).

Подходящими для сада или дачи стали малобюджетные домики на винтовых сваях, на нашем сайте можно найти одноэтажные и полуторатажные варианты.

В случае если дом строится для ПМЖ (постоянного проживания), готовы предложить очень теплые и надежные двухэтажные и одноэтажные коттеджи и дома на плитных и ленточных фундаментах.

Имеется 2 размера профилированного бруса: 140х140 мм и 190х140 мм. Постройки из вертикального бруса строим из бруса 140х190 мм.

Дополнительные услуги


Привлекательный и функциональный проект 18 – полутораэтажный дом с маленькой террасой (6х7,5 м.), собранный из профилированного бруса, имеет оптимальный, тщательно рассчитанный размер и доступную цену, что обеспечивает высокий спрос на все дома компании «Дача из бруса».

Несомненные преимущества наших домов:

  • прочность и надежность конструкции;
  • удобное расположение помещений;
  • отсутствие необходимости в значительных затратах на фундаментные, строительные и отделочные работы;
  • эстетическая привлекательность строения;
  • долговечность и абсолютная экологическая безопасность натуральных материалов.

Удобно расположенные комнаты освещаются двойными зимними окнами. Дом общей площадью 58.82 кв.м. надежно защищен двускатная крышей, крытой ондулином заранее выбранной расцветки. Строгость в подборе высококачественных материалов является неизменной особенностью фирмы.

Конкурентная цена проекта от компании «Дачи из бруса» удивит даже искушенного потребителя %VGORODE% и подтвердит правильность выбора авторитетного подрядчика.


Популярные проекты

хит продаж брус камерной сушки
Тип:
Общая площадь: 1002
1461600
от 1392100
хит продаж брус камерной сушки
Тип:
Общая площадь: 1372
1913100
от 1822100
хит продаж брус камерной сушки
Тип: с балконом, с большой террасой
Общая площадь: 73.62
1493100
от 1422100

Заказать или задать вопрос




Дома из бруса в Рязани
Отзывы из Яндекс Карт
4.9
97 отзывов
Дополнительные услуги 88%
2 154 оценок
Комплектации 89%
1 535 оценок
Планировки 90%
2 484 оценок
Проекты 93%
2 231 оценок
С
Юра Чеботарёв03/15/2025 г.
Решил построить дом для постоянного проживания и остановился на каркасной технологии. Компания Брус дома предложила отличный проект с энергоэффективными решениями. Строительство велось этапно, с постоянным контролем качества, и вот уже год живу в теплом и уютном доме. Особенно радует, что расходы на отопление минимальные благодаря грамотному утеплению.
Отзывы из Google Карт
4.8
59 отзывов
Дополнительные услуги 88%
2 154 оценок
Комплектации 89%
1 535 оценок
Планировки 90%
2 484 оценок
Проекты 93%
2 231 оценок
С
Марта Сомова08/22/2025 г.
Мы построили с этой компанией и дом, и баню, и оба раза всё было сделано идеально — никаких проблем с фундаментом, стены ровные, крыша не течёт, и в помещениях пахнет настоящим деревом, а не химией.
Отзывы из 2гис
4.9
43 отзывов
Дополнительные услуги 88%
2 154 оценок
Комплектации 89%
1 535 оценок
Планировки 90%
2 484 оценок
Проекты 93%
2 231 оценок
С
Эмма Гноева04/14/2025 г.
Выражаю огромную благодарность всей команде за нашу новую баню — строительство прошло быстро, без задержек, и результат превзошел все ожидания, особенно приятно порадовала аккуратность и чистота после завершения работ.

Заказать или задать вопрос

Заказать звонок

Напишите нам
Здравствуйте! Отправьте нам вопрос или заявку в WhatsApp