Дома под ключ в Рязани
Отзывы из Яндекс Карт
4.9
92 отзывов
Дополнительные услуги 88%
2 154 оценок
Комплектации 89%
1 535 оценок
Планировки 90%
2 484 оценок
Проекты 93%
2 231 оценок
С
Габриэлла Щеглова02/14/2026 г.
Первый раз воспользовалась услугой «под ключ» для дома 4х6. Мебель не входила, но стены покрасили, полы сделали, даже карнизы повесили. Не понравилось, что сантехнику устанавливали второпях — текла смеситель.
С
Валентин Демидов02/17/2025 г.
Все официально — договор, гарантии, все документы в полном порядке, что дает ощущение полной защищенности.
Отзывы из Google Карт
4.8
56 отзывов
Дополнительные услуги 88%
2 154 оценок
Комплектации 89%
1 535 оценок
Планировки 90%
2 484 оценок
Проекты 93%
2 231 оценок
С
Борис04/22/2026 г.
Баня 5,5х5,5 с парилкой и комнатой отдыха вышла отличная. Внутри всё по уму, полы с подогревом. Только дверь в предбанник перекосило через месяц — приехали подкрутили петли.
С
Дима Агапов05/28/2025 г.
Дом из профилированного бруса от «Брус дома» не только красив внешне, но и невероятно экологичен внутри: зимой дышится легко, влажность всегда на оптимальном уровне, а стены надёжно держат тепло, позволяя существенно экономить на отоплении.
Отзывы из 2гис
4.9
43 отзывов
Дополнительные услуги 88%
2 154 оценок
Комплектации 89%
1 535 оценок
Планировки 90%
2 484 оценок
Проекты 93%
2 231 оценок
С
Филипп Владимиров03/31/2026 г.
Жена настояла на доме 9х12 с эркером и балконом для круглогодичной жизни. БрусДома сделали проект с учётом наших хотелок, даже разместили гардеробную. Сейчас минус 25 на улице, а в доме плюс 23 без электрического обогрева — утепление отличное.
С
Татьяна У.01/08/2026 г.
Решили рискнуть и заказать дом 10х12 с гаражом и котельной для круглогодичного проживания. Менеджер очень подробно всё расписала, даже смету скорректировали три раза. Результатом довольны, хотя стройка затянулась на месяц — дожди помешали, но нас предупре
С
Гелия Звягинцева08/29/2025 г.
Это мой первый опыт строительства, и я боялась буквально всего. Но страх быстро прошел, ведь в компании "Брус дома" работают настоящие профессионалы, которые знают свое дело на отлично. Они возвели дом моей мечты, крепкий, теплый и такой родной. Я счастлива, что обратилась именно к ним.


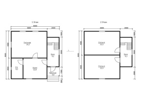
Проект №37 Дом в 1,5 этажа 8х8

каркас из строганой доски
Создайте свой план для этого проекта
и отправьте его нам на расчет в один клик.
Каркасный дом (150 мм) 8х8 Толщина утепления 150 мм 2692100 Заказать
Каркасный дом (200 мм) 8х8 Толщина утепления 200 мм 2922100 Заказать

Пользуйтесь нашим планировщиком для того, чтобы получить персональную планировку.

С использованием планировщика можно сделать чертежи, схемы, эскизы, планы дома с эркером, мансардой, с необходимым количеством комнат. Вы сможете получить персональный проект с планировкой, 100% отвечающий вашим требованиям.

Вы сможете подобрать тип крыши: четырехскатная, двускатная и вальмовая. Двухскатную считают особенно популярной у малометражных домов.

Самые востребованные сегодня размеры: мини - до 50 м2 (чаще всего, 1 этажные дома); компактные - от 70 до 100м2 (обычно двухэтажные); большие дома - от 150 квадратов и свыше.

Строим дуплексы - большие надежные каркасные постройки с двумя входами на несколько семей. Эти дома предполагаются для двух хозяев, они делятся на две половины, для каждой половины - отдельный вход.


Наши работы

Перейти в галерею


Комплектация

Длина: 8 м
Ширина: 8 м
Общая площадь: 113.03 м2
Исполнение Под ключ (с отделкой)
Фундамент Свайно-винтовой или ж/б сваи (рассчитываются отдельно).
Гидроизоляция фундамента Рубероид в два слоя.
Основание (обвязка) Из обрезного бруса 150х150 мм. 150х200 мм. согласно выбранной толщине утепления. Торцевая доска строганая 45х145/45х195+/-5 мм. согласно выбранной толщине утепления. Обработка антисептиком.
Цокольное перекрытие Строганая доска камерной сушки 45х145/45х195+/-5 мм. с шагом 590 мм. Обработка антисептиком.
Пол черновой Обрезная доска камерной сушки 20х100 мм.
Влаго-ветрозащита чернового пола Мембрана Ондутис А100.
Внешние стены Стойки каркаса из строганой доски камерной сушки 45х145/45х195+/-5 мм. с шагом 590 мм. Верхняя двойная и нижняя обвязки из строганой доски камерной сушки 45х145/45х195+/-5 мм. Разгрузочный ригель из строганой доски 45х145+/-5 мм. Укосины из строганой доски 20х95 мм.
Перегородки Стойки каркаса из строганой доски камерной сушки 45х95+/-5 мм. с шагом 590 мм. Верхняя двойная и нижняя обвязки из строганой доски 45х95+/-5 мм. Разгрузочный ригель из строганой доски камерной сушки 45х145+/-5 мм. Укосины из строганой доски камерной сушки 20х95 мм.
Сборка каркаса На гвозди.
Высота от пола до потолка Дом одноэтажный: 2,5 м. Дом с мансардой: 1-ый этаж- 2,5 м.
2-ой этаж (мансарда)- 2,3 м.
Дом в полтора и два этажа:
1-ый этаж 2,5 м.
2-ой этаж 2,4 м. в полутораэтажном доме
2,5 м. в двухэтажном доме.
Внешняя отделка стен Имитация бруса камерной сушки, сорт АВ, толщиной 17 мм. Монтаж через строганый брусок камерной сушки 45х45+/-5 мм. (вентилируемый фасад). Влаго-ветрозащитная мембрана- Ондутис А100.
Внутренняя отделка стен, перегородок Евровагонка камерной сушки, сорт АВ, толщиной 12,5 мм. по строганой рейке 20х40+/-5 мм. либо ГКЛ 12,5 мм.
Отделка потолка Евровагонка камерной сушки, сорт АВ толщиной, 12,5 мм. по строганой рейке 20х40+/-5 мм. либо ГКЛ 12,5 мм.
Пол чистовой Шпунтованная доска камерной сушки толщиной 35-36 мм. сорт АВ. по строганой рейке 20х40+/-5 мм. либо шпунтованная ДСП 16 мм. по разряженной обрешётке из строганой доски камерной сушки 20х95+/-5 мм.
Утепление (пол, потолок) Минеральная вата Knauf 150/200 мм. согласно выбранной толщине утепления.
Утепление стен Плитный утеплитель Rockwool, толщиной 150/200 мм. согласно выбранной толщине утепления.
Звукоизоляция перегородок Плитный утеплитель Rockwool, толщиной 100 мм.
Пароизоляция (стены, перегородки, пол, потолок) Плёнка Ондутис R70. Дополнительная герметизация нахлёстов/примыканий пароизоляционной плёнки клейкой лентой Delta.
Окна Двухкамерные стеклопакеты ПВХ белого цвета, профиль 60 мм. В комплекте: отливы, подоконники, москитные сетки.
Двери Входная- металлическая, утеплённая (Россия). Межкомнатные- филёнчатые.
Наличники на окна и двери Наличник деревянный, строганый, камерной сушки 70-90 мм. с двух сторон.
Лестница (при наличии второго этажа) Деревянная, одно или двухмаршевая. Перила- заводские резные, балясины- заводские точеные, устанавливаются стартовые точёные столбы. Ступени 40х200 мм. Тетива лестницы- 90х140 мм.
Крыша Двускатная, ломаная или вальмовая в соответствии с проектом.
Стропильная система Выполнена из строганой доски камерной сушки 45х145/45х195+/-5 мм. Шаг установки стропил 590 мм.
Обрешётка Выполняется из строганой доски камерной сушки толщиной 20х95+/-5 мм. Шаг крепления обрешетки 350 мм. Контробрешётка выполняется из строганого бруска камерной сушки 45х45+/-5 мм. Крепится по стропилам (вентиляционный зазор).
Подкровельная мембрана Ондутис А100
Кровельное покрытие (на выбор) Металлочерепица 0,45 мм. Цвет на выбор.
Фронтоны (при наличии) Каркас из строганой доски камерной сушки 45х145/45х195+/-5 мм. Обшиваются имитацией бруса камерной сушки, сорт АВ, толщиной 17 мм. Монтаж через строганый брусок камерной сушки 45х45+/-5 мм. (вентилируемый фасад). Влаго-ветрозащитная мембрана- Ондутис А100. Монтаж вентиляционных решёток.
Свесы крыши Ширина 400 мм. Подшиваются вагонкой камерной сушки, сорт АВ.
Терраса/балкон (при наличии) Устанавливаются опорные столбы из строганного бруса камерной сушки 140х140 мм.
Отделка потолка террасы/балкона Евровагонка камерной сушки толщиной 12,5 мм. сорт АВ.
Пол террасы/балкона Шпунтованная доска камерной сушки толщиной 35-36 мм. сорт АВ.
Ограждение террасы/балкона Перила- строганая доска. Балясины- точеные, фигурные. Либо ограждение в скандинавском стиле. Устанавливаются ступени у входа.
Допуск на геометрические параметры Составляет +/- 50 мм по длине с каждой стороны.
Допускается стыковка имитации бруса, вагонки и половой доски По всему периметру стен дома (если ширина и длина дома более 6,0 метров). Вагонки и доски пола в каждой отдельной комнате.
Допуски по имитации бруса, вагонке, доске +/- 5 мм.
В стоимость включена Доставка комплекта материала в радиусе 500 км. от г. Пестова Новгородской области и сборка дома на вашем участке.
Гарантия 5 лет.
Бытовка строительная 2,0х3,0 м. каркасно-щитовая. Стоимость 23000 руб. Остаётся на участке Заказчика.
Туалет 1,0х1,0 м. каркасно-щитовой. Стоимость 12000 руб. Остаётся на участке Заказчика.
Генератор Стоимость аренды на весь срок строительства 15000 руб. ГСМ за счёт Заказчика.

Сооружение домов осуществляется в нескольких видах: под ключ и под усадку, когда сруб отстаивается на протяжении определенного времени.

В мороз желательно строить в мороз, чтобы каркас не отсырел, летом - не в дождливую.

Оптимальными для сада или дачи стали домики на винтовых сваях, на нашем сайте вы увидите одноэтажные и полуторатажные типы домов.

Для ПМЖ (постоянного проживания), предлагаем очень надежные и теплые двухэтажные и одноэтажные коттеджи и дома на ленточных и плитных фундаментах.

Существует два размера утепления: 200 мм и 150 мм. Каркасные дома с утеплителем 200 миллиметров получаются теплее, но несколько дороже.

Дополнительные услуги


Проект 37 – полутораэтажный каркасный дом с 8х8 м.. Общая площадь дома составляет 113.03 кв.м. и комфортно разместит семью или дружескую компанию.

Фундамент дома по желанию заказчика может быть выполнен в ленточном варианте, либо опорно-столбчатом или свайно-винтовом. Наши специалисты изготовят любой фундамент в короткие сроки.

Продуманное расположение помещений и окон в них делает комнаты светлыми и просторными. Межкомнатные двери филенчатые, окна – двойные зимние. Покрытие двускатной крыши – ондулин.

Компания «Дача из бруса» предлагает строительство дома в двух вариантах – с отделочными работами (под ключ) или без них.

Помимо большого количества типовых проектов, мы готовы разработать для заказчика проект в соответствии с его пожеланиями и осуществить его в короткие сроки в Рязани.


Популярные проекты


Двухэтажные дома из бруса Дома из бруса более 100 кв.м. Каркасные дома 9х10
хит продаж
Тип: с балконом, с большой террасой
Общая площадь: 2
4496100
от 4282100
хит продаж
Тип: с балконом, с маленькой террасой
Общая площадь: 2
1640100
от 1562100
хит продаж
Тип:
Общая площадь: 2
2879100
от 2742100
Дома из бруса

Заказать или задать вопрос



Заказать или задать вопрос

Заказать звонок