Дома под ключ в Рязани
Отзывы из Яндекс Карт
4.9
89 отзывов
Дополнительные услуги 88%
2 154 оценок
Комплектации 89%
1 535 оценок
Планировки 90%
2 484 оценок
Проекты 93%
2 231 оценок
С
Саша Озеров07/03/2025 г.
Финансовая прозрачность сделки стала для меня приятным бонусом, ведь все дополнительные расходы согласовывались заранее и обосновывались необходимостью, что позволило избежать неприятных сюрпризов и сохранить бюджет в запланированных рамках.
Отзывы из Google Карт
4.8
54 отзывов
Дополнительные услуги 88%
2 154 оценок
Комплектации 89%
1 535 оценок
Планировки 90%
2 484 оценок
Проекты 93%
2 231 оценок
С
Лилия Жарова03/20/2025 г.
Мы с мужем в полном восторге от нашей новой бани! Заказывали строительство под ключ из профилированного бруса и ни разу не усомнились в выборе компании. С момента подписания договора до сдачи объекта прошло всего два месяца, и ни дня задержки! Пользуемся каждые выходные, и с каждым разом понимаем, насколько это качественная и долговечная вещь.
Отзывы из 2гис
4.9
43 отзывов
Дополнительные услуги 88%
2 154 оценок
Комплектации 89%
1 535 оценок
Планировки 90%
2 484 оценок
Проекты 93%
2 231 оценок
С
Иван05/12/2025 г.
Каждый этап строительства моего деревянного дома сопровождался консультациями и фотоотчетами, что позволило мне быть в курсе всего процесса, несмотря на занятость на работе.


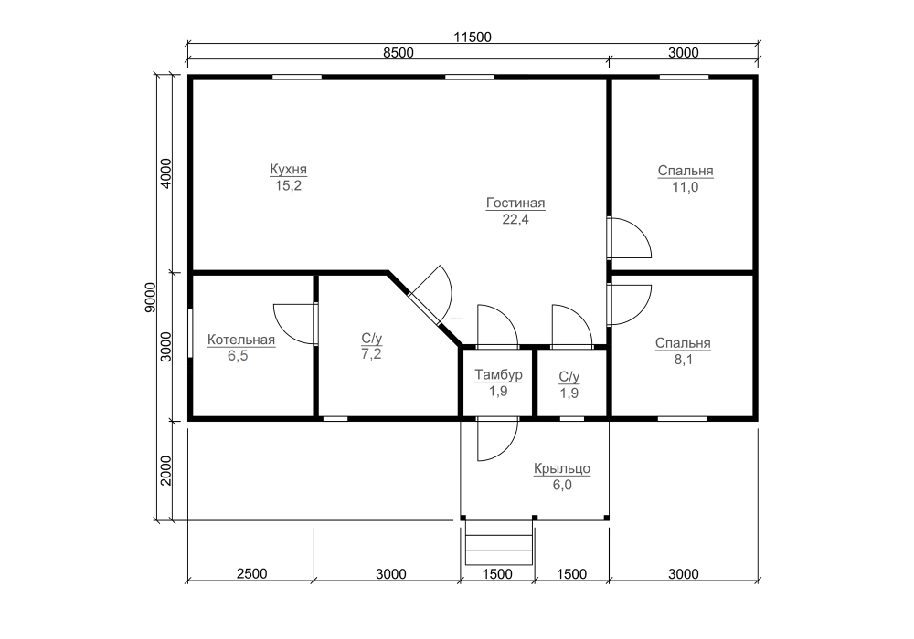
Проект №91 Каркасный дом 11,5х9

каркас из строганой доски
Каркасный дом (150 мм) 7х11,5 Толщина утепления 150 мм 2342100 Заказать
Каркасный дом (200 мм) 7х11,5 Толщина утепления 200 мм 2522100 Заказать

Пользуйтесь нашим планировщиком для того, чтобы получить персональную планировку.

С использованием планировщика можно сделать чертежи, схемы, эскизы, планы дома с эркером, мансардой, с необходимым количеством комнат. Вы сможете получить персональный проект с планировкой, 100% отвечающий вашим требованиям.

Вы сможете подобрать тип крыши: четырехскатная, двускатная и вальмовая. Двухскатную считают особенно популярной у малометражных домов.

Самые востребованные сегодня размеры: мини - до 50 м2 (чаще всего, 1 этажные дома); компактные - от 70 до 100м2 (обычно двухэтажные); большие дома - от 150 квадратов и свыше.

Строим дуплексы - большие надежные каркасные постройки с двумя входами на несколько семей. Эти дома предполагаются для двух хозяев, они делятся на две половины, для каждой половины - отдельный вход.


Наши работы

Перейти в галерею


Комплектация

Площадь застройки: 86.5 м2
Длина: 11 м
Ширина: 7 м
Общая площадь: 74.5 м2
Исполнение Под ключ (с отделкой)
Фундамент Свайно-винтовой или ж/б сваи (рассчитываются отдельно).
Гидроизоляция фундамента Рубероид в два слоя.
Основание (обвязка) Из обрезного бруса 150х150 мм. 150х200 мм. согласно выбранной толщине утепления. Торцевая доска строганая 45х145/45х195+/-5 мм. согласно выбранной толщине утепления. Обработка антисептиком.
Цокольное перекрытие Строганая доска камерной сушки 45х145/45х195+/-5 мм. с шагом 590 мм. Обработка антисептиком.
Пол черновой Обрезная доска камерной сушки 20х100 мм.
Влаго-ветрозащита чернового пола Мембрана Ондутис А100.
Внешние стены Стойки каркаса из строганой доски камерной сушки 45х145/45х195+/-5 мм. с шагом 590 мм. Верхняя двойная и нижняя обвязки из строганой доски камерной сушки 45х145/45х195+/-5 мм. Разгрузочный ригель из строганой доски 45х145+/-5 мм. Укосины из строганой доски 20х95 мм.
Перегородки Стойки каркаса из строганой доски камерной сушки 45х95+/-5 мм. с шагом 590 мм. Верхняя двойная и нижняя обвязки из строганой доски 45х95+/-5 мм. Разгрузочный ригель из строганой доски камерной сушки 45х145+/-5 мм. Укосины из строганой доски камерной сушки 20х95 мм.
Сборка каркаса На гвозди.
Высота от пола до потолка Дом одноэтажный: 2,5 м. Дом с мансардой: 1-ый этаж- 2,5 м.
2-ой этаж (мансарда)- 2,3 м.
Дом в полтора и два этажа:
1-ый этаж 2,5 м.
2-ой этаж 2,4 м. в полутораэтажном доме
2,5 м. в двухэтажном доме.
Внешняя отделка стен Имитация бруса камерной сушки, сорт АВ, толщиной 17 мм. Монтаж через строганый брусок камерной сушки 45х45+/-5 мм. (вентилируемый фасад). Влаго-ветрозащитная мембрана- Ондутис А100.
Внутренняя отделка стен, перегородок Евровагонка камерной сушки, сорт АВ, толщиной 12,5 мм. по строганой рейке 20х40+/-5 мм. либо ГКЛ 12,5 мм.
Отделка потолка Евровагонка камерной сушки, сорт АВ толщиной, 12,5 мм. по строганой рейке 20х40+/-5 мм. либо ГКЛ 12,5 мм.
Пол чистовой Шпунтованная доска камерной сушки толщиной 35-36 мм. сорт АВ. по строганой рейке 20х40+/-5 мм. либо шпунтованная ДСП 16 мм. по разряженной обрешётке из строганой доски камерной сушки 20х95+/-5 мм.
Утепление (пол, потолок) Минеральная вата Knauf 150/200 мм. согласно выбранной толщине утепления.
Утепление стен Плитный утеплитель Rockwool, толщиной 150/200 мм. согласно выбранной толщине утепления.
Звукоизоляция перегородок Плитный утеплитель Rockwool, толщиной 100 мм.
Пароизоляция (стены, перегородки, пол, потолок) Плёнка Ондутис R70. Дополнительная герметизация нахлёстов/примыканий пароизоляционной плёнки клейкой лентой Delta.
Окна Двухкамерные стеклопакеты ПВХ белого цвета, профиль 60 мм. В комплекте: отливы, подоконники, москитные сетки.
Двери Входная- металлическая, утеплённая (Россия). Межкомнатные- филёнчатые.
Наличники на окна и двери Наличник деревянный, строганый, камерной сушки 70-90 мм. с двух сторон.
Лестница (при наличии второго этажа) Деревянная, одно или двухмаршевая. Перила- заводские резные, балясины- заводские точеные, устанавливаются стартовые точёные столбы. Ступени 40х200 мм. Тетива лестницы- 90х140 мм.
Крыша Двускатная, ломаная или вальмовая в соответствии с проектом.
Стропильная система Выполнена из строганой доски камерной сушки 45х145/45х195+/-5 мм. Шаг установки стропил 590 мм.
Обрешётка Выполняется из строганой доски камерной сушки толщиной 20х95+/-5 мм. Шаг крепления обрешетки 350 мм. Контробрешётка выполняется из строганого бруска камерной сушки 45х45+/-5 мм. Крепится по стропилам (вентиляционный зазор).
Подкровельная мембрана Ондутис А100
Кровельное покрытие (на выбор) Металлочерепица 0,45 мм. Цвет на выбор.
Фронтоны (при наличии) Каркас из строганой доски камерной сушки 45х145/45х195+/-5 мм. Обшиваются имитацией бруса камерной сушки, сорт АВ, толщиной 17 мм. Монтаж через строганый брусок камерной сушки 45х45+/-5 мм. (вентилируемый фасад). Влаго-ветрозащитная мембрана- Ондутис А100. Монтаж вентиляционных решёток.
Свесы крыши Ширина 400 мм. Подшиваются вагонкой камерной сушки, сорт АВ.
Терраса/балкон (при наличии) Устанавливаются опорные столбы из строганного бруса камерной сушки 140х140 мм.
Отделка потолка террасы/балкона Евровагонка камерной сушки толщиной 12,5 мм. сорт АВ.
Пол террасы/балкона Шпунтованная доска камерной сушки толщиной 35-36 мм. сорт АВ.
Ограждение террасы/балкона Перила- строганая доска. Балясины- точеные, фигурные. Либо ограждение в скандинавском стиле. Устанавливаются ступени у входа.
Допуск на геометрические параметры Составляет +/- 50 мм по длине с каждой стороны.
Допускается стыковка имитации бруса, вагонки и половой доски По всему периметру стен дома (если ширина и длина дома более 6,0 метров). Вагонки и доски пола в каждой отдельной комнате.
Допуски по имитации бруса, вагонке, доске +/- 5 мм.
В стоимость включена Доставка комплекта материала в радиусе 500 км. от г. Пестова Новгородской области и сборка дома на вашем участке.
Гарантия 5 лет.
Бытовка строительная 2,0х3,0 м. каркасно-щитовая. Стоимость 23000 руб. Остаётся на участке Заказчика.
Туалет 1,0х1,0 м. каркасно-щитовой. Стоимость 12000 руб. Остаётся на участке Заказчика.
Генератор Стоимость аренды на весь срок строительства 15000 руб. ГСМ за счёт Заказчика.

Сооружение домов осуществляется в нескольких видах: под ключ и под усадку, когда сруб отстаивается на протяжении определенного времени.

В мороз желательно строить в мороз, чтобы каркас не отсырел, летом - не в дождливую.

Оптимальными для сада или дачи стали домики на винтовых сваях, на нашем сайте вы увидите одноэтажные и полуторатажные типы домов.

Для ПМЖ (постоянного проживания), предлагаем очень надежные и теплые двухэтажные и одноэтажные коттеджи и дома на ленточных и плитных фундаментах.

Существует два размера утепления: 200 мм и 150 мм. Каркасные дома с утеплителем 200 миллиметров получаются теплее, но несколько дороже.

Дополнительные услуги


Проект 91 – одноэтажный каркасный дом с 7х11,5 м.. Общая площадь дома составляет 74.5 кв.м. и комфортно разместит семью или дружескую компанию.

Фундамент дома по желанию заказчика может быть выполнен в ленточном варианте, либо опорно-столбчатом или свайно-винтовом. Наши специалисты изготовят любой фундамент в короткие сроки.

Продуманное расположение помещений и окон в них делает комнаты светлыми и просторными. Межкомнатные двери филенчатые, окна – двойные зимние. Покрытие двускатной крыши – ондулин.

Компания «Дача из бруса» предлагает строительство дома в двух вариантах – с отделочными работами (под ключ) или без них.

Помимо большого количества типовых проектов, мы готовы разработать для заказчика проект в соответствии с его пожеланиями и осуществить его в короткие сроки в Рязани.


Популярные проекты


Дома из бруса с мансардой Каркасные дома 8х8 Бани из бруса с террасой
хит продаж
Тип:
Общая площадь: 2
1965600
от 1872100
хит продаж
Тип:
Общая площадь: 2
3110100
от 2962100
Дома из бруса

Заказать или задать вопрос



Заказать или задать вопрос

Заказать звонок