Дома под ключ в Рязани
Отзывы из Яндекс Карт
4.9
115 отзывов
Дополнительные услуги 88%
2 154 оценок
Комплектации 89%
1 535 оценок
Планировки 90%
2 484 оценок
Проекты 93%
2 231 оценок
С
Алиса Окулова03/08/2026 г.
С панорамными окнами в спальне я сначала боялась, что будет некомфортно. Но они с хорошими шторами и фурнитурой, так что никаких проблем с приватностью нет.
С
Ларион Е.01/14/2026 г.
Конструктив дома с бассейном и сауной — это было сложно. Вентиляцию сделали грамотно, пар не идёт в комнаты. Но электрику пришлось переделывать, неправильно рассчитали нагрузку.
С
Аристарх Куприянов08/29/2025 г.
Искал компанию, которая построит дом быстро и без головной боли, и нашел — "Брус дома" справились на все сто! Каркасный дом под ключ был возведен в рекордные сроки, при этом все технологии соблюдены, утепление сделано на совесть! Отдельное спасибо за качественные окна и двери, которые не продуваются и прекрасно сохраняют тепло! Живу с комфортом и уже порекомендовал компанию коллеге!
Отзывы из Google Карт
4.8
69 отзывов
Дополнительные услуги 88%
2 154 оценок
Комплектации 89%
1 535 оценок
Планировки 90%
2 484 оценок
Проекты 93%
2 231 оценок
С
Ирма Сомова05/03/2026 г.
Дом 10х10 с мансардой и двумя входами для круглогодичного проживания. В процессе подняли цены на доставку, пришлось доплатить. Но качество отделки внутри порадовало.
С
Эмма Новикова02/22/2026 г.
Построили нам дом 6х7,5 с мансардой и крыльцом, ровно через год после подписания договора заехали. Очень понравилось, что каждый месяц присылали фотоотчет в ватсап. Огорчило, что при монтаже кровли продырявили пароизоляцию — заметила сама, строители снача
С
Иоанна А.02/11/2025 г.
Очень рада, что доверила строительство своей бани именно этой компании. Всё сделали качественно, материалы отборные, и пахнет в парилке волшебно — настоящий русский дух!
Отзывы из 2гис
4.9
43 отзывов
Дополнительные услуги 88%
2 154 оценок
Комплектации 89%
1 535 оценок
Планировки 90%
2 484 оценок
Проекты 93%
2 231 оценок
С
Лира04/01/2026 г.
Баню построили под усадку, как и договаривались. В первый год не пользовались, ждали. Сейчас всё отлично, паряется замечательно. Единственное, в предбаннике пол немного просел в одном углу, но бригада приехала и всё поправила по гарантии.
С
Искра Латышева04/21/2025 г.
Отдельное спасибо за терпение к моим бесконечным звонкам и вопросам, всегда подробно все объясняли и помогали принять правильное решение по планировке моего каркасного дома.


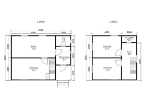
Проект №22 Дом в 2 этажа 6х8

брус камерной сушки
Создайте свой план для этого проекта
и отправьте его нам на расчет в один клик.
Под ключ (с отделкой) 6х8 Профилированный 140х140 мм 2232100 Заказать
Под ключ (с отделкой) 6х8 Профилированный 190х140 мм 2652100 Заказать
Под усадку (без отделки) 6х8 Cруб дома 140х140 мм 1622100 Заказать
Под усадку (без отделки) 6х8 Cруб дома 190х140 мм 1992100 Заказать


Комплектация

Площадь застройки: 48 м2
Длина: 6 м
Ширина: 8 м
Общая площадь: 70 м2
Под ключ (с отделкой) Под усадку (без отделки)
Фундамент Свайно-винтовой или ж/б сваи (рассчитываются отдельно).
Гидроизоляция фундамента Рубероид в два слоя.
Основание (обвязка) Из обрезного бруса (100х150 мм. 150х150 мм. 150х200 мм. согласно выбранному сечению бруса). Обработка антисептиком.
Количество рядов основания 2 2
Цокольное перекрытие Обрезной брус камерной сушки 100х150/50х200 мм. с шагом 600 мм. Обработка антисептиком. Обрезной брус естественной влажности 100х150/50х200 мм. с шагом 600 мм. Обработка антисептиком.
Пол черновой Обрезная доска камерной сушки 20х100 мм. Обрезная доска естественной влажности 20х100 мм.
Внешние стены Профилированный брус камерной сушки, сечением 90х140/140х140/190х140 мм. по выбранной комплектации. Два вида профиля: 
1. С двух сторон, прямой со снятой фаской. 2. Снаружи под «блок- хаус», внутри прямой.
Высота сруба: Сруб одноэтажный- 18 венцов
Сруб с мансардой- 18 венцов
Сруб в 1,5 этажа- 18 венцов, далее каркас с внешней отделкой имитацией бруса.
Сруб в 2 этажа- 37 венцов
Профилированный брус естественной влажности, сечением 90х140/140х140/190х140 мм. по выбранной комплектации. Два вида профиля: 
1. С двух сторон, прямой со снятой фаской. 2. Снаружи под «блок- хаус», внутри прямой.
Высота сруба: Сруб одноэтажный- 18 венцов
Сруб с мансардой- 18 венцов
Сруб в 1,5 этажа- 18 венцов, далее каркас с внешней отделкой имитацией бруса.
Сруб в 2 этажа- 37 венцов
Межвенцовый утеплитель Джут (льноджутовое полотно). Джут (льноджутовое полотно).
Перегородки 1-го этажа Профилированный брус камерной сушки, сечением 90х140 мм. Профилированный брус естественной влажности, сечением 90х140 мм.
Перегородки 2-го этажа Каркасные: доска камерной сушки 40х100 мм, обшитые евровагонкой хвойных пород, камерной сушки, толщиной 12,5 мм. сорт «АВ» (дома с мансардой и в 1,5 этажа). Брусовые: профилированный брус камерной сушки, сечением 90х140 мм. (дома двухэтажные). Каркасные: доска естественной влажности 40х100 мм. (дома с мансардой и в 1,5 этажа). Брусовые: профилированный брус естественной влажности, сечением 90х140 мм. (дома двухэтажные).
Сборка сруба Берёзовый нагель. Берёзовый нагель.
Соединение углов сруба «Тёплый угол» (коренной шип). «Тёплый угол» (коренной шип).
Высота от пола до потолка Сруб одноэтажный: 2,4 м. (18 венцов) Сруб с мансардой: 1-ый этаж- 2,4 м. (18 венцов)
2-ой этаж (мансарда)- 2,3 м.
Сруб в полтора и два этажа:
1-ый этаж 2,4 м ±4 см. (18 венцов)
2-ой этаж 2,4 м ±4 см. каркасные аттиковые стены (боковые) высотой 1,5 м. в полутораэтажном доме
2,4 м ±4 см (поднят брусом на 18 венцов) в двухэтажном доме.
Сруб одноэтажный: 2,5 м. (18 венцов) Сруб с мансардой: 1-ый этаж- 2,5 м. (18 венцов)
2-ой этаж (мансарда)- 2,4 м.
Сруб в полтора и два этажа:
1-ый этаж 2,5 м ±4 см. (18 венцов)
2-ой этаж 2,5 м ±4 см. каркасные аттиковые стены (боковые) высотой 1,5 м. в полутораэтажном доме
2,5 м ±4 см (поднят брусом на 18 венцов) в двухэтажном доме.
Утепление (пол, потолок, мансарда) Минеральная вата Knauf 150 мм. Отсутствует.
Пароизоляция (пол, потолок, мансарда) Ондутис R70. Отсутствует.
Пол чистовой Шпунтованная доска камерной сушки толщиной 36 мм. сорт АВ. по рейке 20х40 мм. либо шпунтованная ДСП 16 мм. по разряженной обрешётке из обрезной доски камерной сушки 20х100 мм. Отсутствует.
Потолки Евровагонка камерной сушки толщиной 12,5 мм. сорт АВ. Отсутствует.
Окна Деревянные, двойного остекления. Отсутствуют.
Двери Входная- металлическая, утеплённая (Россия). Межкомнатные- филёнчатые. Отсутствуют.
Наличники на окна и двери Наличник деревянный, строганый, камерной сушки 70-90 мм. Отсутствует.
Шиповка оконных и дверных проёмов (ройки) Да. Отсутствует.
Лестница (при наличии второго этажа) Деревянная, одно или двухмаршевая. Перила- заводские резные, балясины- заводские точеные, устанавливаются стартовые точёные столбы. Ступени 40х200 мм. Тетива лестницы- 90х140 мм. Отсутствует.
Крыша Двускатная, ломаная или вальмовая в соответствии с проектом. Двускатная, ломаная или вальмовая в соответствии с проектом.
Стропильная система Выполнена из обрезной доски камерной сушки 40х150 мм. Шаг установки стропильных ног 600 мм. Выполнена из обрезной доски естественной влажности 40х150 мм. Шаг установки стропильных ног 600 мм.
Обрешётка Выполняется из обрезной доски камерной сушки толщиной 20-22 мм. Шаг крепления обрешетки 300 мм. Контробрешётка выполняется из бруска камерной сушки 40х50 мм. Крепится по стропильным ногам (вентиляционный зазор). Выполняется из обрезной доски естественной влажности толщиной 20-22 мм. Шаг крепления обрешетки 300 мм. Контробрешётка выполняется из бруска естественной влажности 40х50 мм. Крепится по стропильным ногам (вентиляционный зазор).
Подкровельная мембрана Ондутис А100 Ондутис А100
Кровельное покрытие (на выбор) Ондулин, Черепица Ондулин. Ондулин, Черепица Ондулин.
Фронтоны (при наличии) Каркас из обрезной доски камерной сушки 40х150 мм. Обшиваются вагонкой камерной сушки толщиной 16 мм. сорт АВ по контррейке 20х40 мм. (вентиляционный зазор). Влаго-ветрозащита Ондутис А100. Монтаж вентиляционных решёток. Каркас из обрезной доски естественной влажности 40х150 мм. Обшиваются вагонкой камерной сушки толщиной 16 мм. сорт АВ по контррейке 20х40 мм. (вентиляционный зазор). Влаго-ветрозащита Ондутис А100. Монтаж вентиляционных решёток.
Свесы крыши Ширина 400 мм. Подшиваются вагонкой камерной сушки, сорт АВ. Ширина 400 мм. Подшиваются вагонкой камерной сушки, сорт АВ.
Терраса/балкон (при наличии) Устанавливаются опорные столбы из строганного бруса камерной сушки 140х140 мм. с компенсационными болтами под усадку. Устанавливаются опорные столбы из строганного бруса естественной влажности 140х140 мм. с компенсационными болтами под усадку.
Отделка потолка террасы/балкона Евровагонка камерной сушки толщиной 12,5 мм. сорт АВ. Отсутствует.
Пол террасы/балкона Шпунтованная доска камерной сушки толщиной 36 мм. сорт АВ. Отсутствует.
Ограждение террасы/балкона Перила- строганая доска. Балясины- точеные, фигурные. Либо ограждение в скандинавском стиле. Устанавливаются ступени у входа. Отсутствует.
Допуск на геометрические параметры сруба Составляет +/- 50 мм по длине с каждой стороны. Составляет +/- 50 мм по длине с каждой стороны.
Допускается стыковка бруса, вагонки и половой доски По всему периметру стен дома (если ширина и длина дома более 6,0 метров). Вагонки и доски пола в каждой отдельной комнате. По всему периметру стен дома (если ширина и длина дома более 6,0 метров).
Допуски по брусу, доске +/- 5 мм. +/- 5 мм.
В стоимость включена Доставка комплекта материала в радиусе 500 км. от г. Пестова Новгородской области и сборка дома на вашем участке. Доставка комплекта материала в радиусе 500 км. от г. Пестова Новгородской области и сборка дома на вашем участке.
Гарантия 5 лет. 2 года.
Бытовка строительная 2,0х3,0 м. каркасно-щитовая. Стоимость 23000 руб. Остаётся на участке Заказчика. Стоимость 23000 руб. Остаётся на участке Заказчика.
Туалет 1,0х1,0 м. каркасно-щитовой. Стоимость 12000 руб. Остаётся на участке Заказчика. Стоимость 12000 руб. Остаётся на участке Заказчика.
Генератор Стоимость аренды на весь срок строительства 10000 руб. ГСМ за счёт Заказчика. Стоимость аренды на весь срок строительства 10000 руб. ГСМ за счёт Заказчика.

Сооружение домов может выполняться в двух вариантах: сразу под ключ и под усадку, когда дом отстаивается в течение некоторого времени.

В период холодов рекомендуется строить из зимнего леса, в летний сезон - из сухого бруса (дерева камерной сушки).

Подходящими для сада или дачи стали малобюджетные домики на винтовых сваях, на нашем сайте можно найти одноэтажные и полуторатажные варианты.

В случае если дом строится для ПМЖ (постоянного проживания), готовы предложить очень теплые и надежные двухэтажные и одноэтажные коттеджи и дома на плитных и ленточных фундаментах.

Имеется 2 размера профилированного бруса: 140х140 мм и 190х140 мм. Постройки из вертикального бруса строим из бруса 140х190 мм.

Дополнительные услуги


Привлекательный и функциональный проект 22 – двухэтажный дом с (6х8 м.), собранный из профилированного бруса, имеет оптимальный, тщательно рассчитанный размер и доступную цену, что обеспечивает высокий спрос на все дома компании «Дача из бруса».

Несомненные преимущества наших домов:

  • прочность и надежность конструкции;
  • удобное расположение помещений;
  • отсутствие необходимости в значительных затратах на фундаментные, строительные и отделочные работы;
  • эстетическая привлекательность строения;
  • долговечность и абсолютная экологическая безопасность натуральных материалов.

Удобно расположенные комнаты освещаются двойными зимними окнами. Дом общей площадью 70 кв.м. надежно защищен двускатная крышей, крытой ондулином заранее выбранной расцветки. Строгость в подборе высококачественных материалов является неизменной особенностью фирмы.

Конкурентная цена проекта от компании «Дачи из бруса» удивит даже искушенного потребителя %VGORODE% и подтвердит правильность выбора авторитетного подрядчика.


Заказать или задать вопрос



Заказать или задать вопрос

Заказать звонок